导读:
       ■悠兰山,惠州双城极墅
       ■高级差系列,悠然见山水
       ■半藏于山水间,送山水又送面积
       ■林峰间特显尊贵,山水融合和谐家居
正文:
■悠兰山,惠州双城极墅
位于惠博景观大道北侧、东江生态走廊线上的城市山麓·悠兰山,在惠州双城(惠城、博罗)10分钟生活圈范围内,距离惠州江北CBD和市政府10公里、约8分钟车程,与博罗中心区仅4分钟车程,可以直接享受两城成熟的生活、商业、休闲度假配套设施。
该项目周边拥有众多大型购物中心,包括惠州最大的综合体华贸中心、佳兆业中心、丽日购物广场等。事实上,城市山麓·悠兰山对面就是新博罗中学,周边还有黄冈中学、实验学校,教育设施可谓一应俱全,近邻180万㎡的东山省级森林公园、汤泉高尔夫球场。
同时,项目周边还有惠河高速、惠盐高速、广惠高速,加上在建并将于2012年开通的博深高速等4条高速公路环绕,形成快速道路交通网,便捷贯通广州、深圳等城市,形成珠三角1小时生活圈。
■高级差系列,半山悠然见山水
城市山麓·悠兰山,整体规划主要为坐北向南,面朝东江、背靠群山,依山傍水,是惠州首创山地城堡独栋别墅,仅54套单位。事实上,由于项目坐落于半山坡地上,整个组团单位不多,却形成了四排错落有致的序列,每层次坡地间形成了7.3~8米的双级差。
事实上,城市山麓·悠兰山产品分为悦水、悦山、邃林、睿峰四个系列,这四个系列分别逐级而上,从悦水→悦山→邃林→睿峰,根据半山坡度而显得错落有致。资料显示,这可是惠州极为少有甚至可以说是唯一的高落差坡地独栋别墅。
此外,山上道路两旁还种植了不少树木,近看远眺,层次间的别墅似乎半露半藏于半山之间,颇有“犹抱琵琶半遮面”的感觉。这种设计有效地保证了每栋别墅的视野开阔,且使得每户间拥有一个相对独立的空间与天地,最大化地把山、江景观收入眼底。同时,更设置了独特尊贵的城堡入口,这无不彰显了一种家族身份。
■半藏于山水间,送山水又送面积
主要以独栋产品为主的城市山麓·悠兰山,建筑面积在300-431㎡,每户为三层+双车位车库+阳光半地下室设计,全赠送露台、地下室、私家三重花园,阳台面积赠送一半面积,赠送比例达到1:1,最大赠送面积达到700多㎡。
具体而言,“悦水”系列,四房四厅四卫设计,建面299.96-301.22㎡,配有40.42-41.18㎡的阳光半地下室。其环绕着森林河岸,每栋别墅前后皆有树林掩映,独有的全错位设计,三面景观,采光通风极佳。6米高入户门廊,7.2米挑空高客厅,大面宽、短进深,使得空间感极为卓越,前后层层露台,使得业主可以随时享受户外不受束缚的自由。
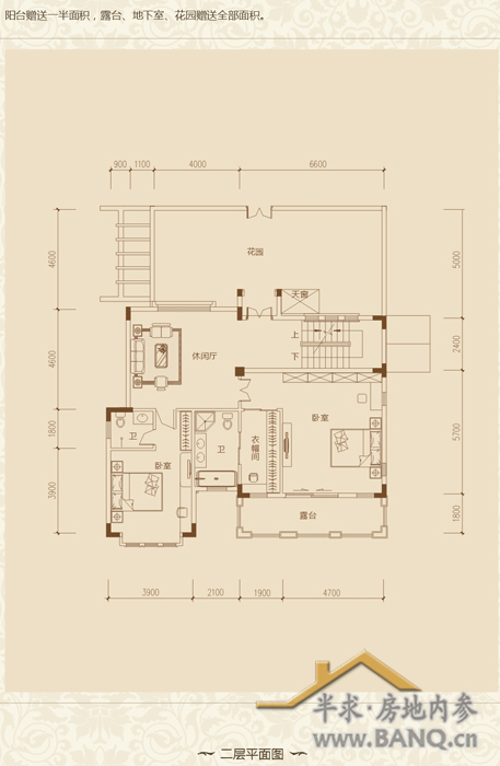
“悦山”系列,五房四厅五卫,建面356.28~358.83㎡,花园和露台面积达到240.24~399.96㎡,半地下室面积85.71㎡。该系列坐北朝南,背山面水,远可观山、近可看水,前后还有绿树掩映,与“悦水”之间的临河台地式花园,使得景观更别致。该系列运用错位布置,户型四面基本没有阻挡,可以实现多面景观;阳光半地下室,三面采光通风,更是通透明亮。
“悦山”系列的双首层设计,使得业主在享受山景的错落有致风景,室内外前后花园露台,还可享受开阔的远眺空间;而建筑半藏于山体之中,每个房间均为套房设计,卫浴或衣帽间、露台设计,更具私密空间;层层间通透设计,也显得室内设计更灵活。
■林峰间特显尊贵,山水融合和谐家居模式
“邃林”系列,为六房四厅五卫设计,建面约374㎡,花园和露台面积为294.27~379.94㎡,半地下室面积为62.15㎡。该系列坐北朝南,依山而筑,前后排之间更有7.3米的高度差,这就使得“邃林”的视野拥有极大化。
在“悦山”系列设计的基础上,“邃林”还设置了独特的精美城堡式入口,利用原石城墙构筑,显得威严而又不是浪漫情调;距离道路3米远的台地式花园,相伴形成前后绿树掩映林,使得整栋别墅拥有了尊贵私密空间。此外,更在卧室处设置玄关,令套房更具私密性。更妙的是,该系列还在每层设置了相对独立的厅、房、花园组合,既保证了私密又有相互交流空间,营造了一种和谐家族居住模式。
“睿峰”系列,其实,户型设计与“邃林”系列类同,然而,不同的是,该系列据于顶层,与“邃林”系列的前后排高差达到7.3米,那么,其与”悦山“系列就有了14.6米的高差。由此,从地势而言,“睿峰”系列已经具有视不可挡的优势,更具尊贵私密的空间感受。
城市山麓·悠兰山层层叠上的户型产品,尊贵、私密、景观最大化,一一糅合于产品之中,更让人感受到一空间一风景之美妙。现房地内参www.BANQ.cn发布城市山麓·悠兰山户型谍报,供各位参考。欢迎各方踊跃在第一时间提供各类第一手楼书、户型图、意向图资料到房地内参邮箱BANQ@vip.163.com,以谍报而造福网友。(09)*1/2
一排森林河岸双拼——悦水户型图
.jpg)
.jpg)
.jpg)
.jpg)
.jpg)
.jpg)
.jpg)
二排山地城堡独栋——悦山户型图
.jpg)
.jpg)
.jpg)
.jpg)
.jpg)
.jpg)
.jpg)
三排山地城堡独栋——邃林户型图
.jpg)
.jpg)
.jpg)
.jpg)
.jpg)
.jpg)
.jpg)
四排山地城堡独栋——睿峰户型图
.jpg)
.jpg)
.jpg)
.jpg)
 .jpg)
.jpg)
.jpg)