■深圳最大低密度中轴墅,1、2期即将售罄
距离全球最大GOLF球会——观澜湖球会直线距离330米的的低密度纯墅大盘和黄·观湖园,是距离全球第一球会最近的集合型深圳大盘,其距梅观高速观澜出口仅3分钟车程、驱车至深圳CBD或深圳机场仅需20余分钟、往香港中环也仅需车程90余分钟。
观湖园由百年企业和黄地产精心打造,辐射莞深港等地、惠及三城。整个项目占地375851.875㎡,总建筑面积165540㎡,容积率仅为0.44。地块同时具备打造低密度纯墅大盘的地利:拥有两个天然湖泊、远山连绵、清新自然。
2009年观湖园一期开盘,即荣登6月深圳楼盘成交龙虎榜冠军宝座。之后,观湖园又成功摘得了2010年上半年深圳别墅成交套数、成交面积“双冠王”桂冠。经过09、10年的持续热销,观湖园1、2期都已即将售罄。
■观湖园3期“独墅”将推:户户临湖,仅105席
2011年,和黄·观湖园适时推出了3期。作为深圳最大、密度最低的中轴墅,观湖园3期沿坡地而建,在延续和吸收了前2期的优秀经验与风格上,人工湖设计为环状,产品绕湖而出,形成了玉带环腰状。
观湖园3期可售产品约141套,其中临湖双拼36套,临湖独墅105套。即将面世的观湖园·君墅,作为“独墅”产品,将填补深圳市场空白。房地内参www.BANQ.cn资料显示,整个组团105席独墅产品,或临湖、或独岛而建。观湖园3期“独墅”规划有八种户型,面积在240-525㎡之间,主力户型为280-340㎡。
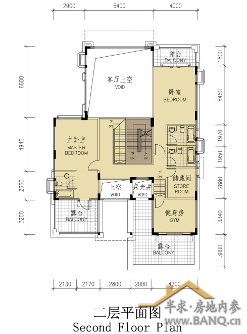
观湖园·君墅,产品拥有阔绰的超大尺度空间,几乎所有户型皆为四层层高。每户皆配备半地下室空间,连接户外花园,亲地亲自然;顶层附屋面大空间,多元化使用;还预留私属电梯空间、户型阳光楼梯间,更配置超大露台开阔空间,彰显“独墅”风格。
■八大户型,风格各异
观湖园·君墅八种户型产品各有特点:
一、观湖园·君墅Ⅰ:临湖而建、约525平方米、四层高。预留私属电梯空间、弧形阳光电梯间,全城罕有,还拥有逾16米大开间,官邸典范,无疑是楼王之选。全采光约16.5米宽半地下室,直接连接户外花园,亲近自然享受,豁达人生之最。一层设置停车房、大堂、大面积露台,更有挑空约6.9米层高、宽约7.8米的府邸式客厅,加上落地全景观餐厅,具备王者典范。二层、三层为主客卧室设计,配备大面积露台。加上顶层屋面大空间设置,稍加修饰,又将是一个空中庭院。
二、观湖园·君墅Ⅱ,约471平方米、四层层高,入口玄关处挑空约6.9米、宽约2.8米,华宅之冠。逾10米大开间,首层超10米宽大露台,屏幕式内外景观尽入眼内;挑空约6.9米层高、宽约6.4米的豪华客厅,更是凸显了巨宅豪华。加上落地玻璃餐厅、家庭厅三厅设计。在预留私属电梯空间基础上,首层还附设6.2米宽约38平米的停车房,加上超大半地下室连接户外花园,尽可享受前庭后院、空中庭院景致生活。
三、观湖园·君墅Ⅲ,建面约363平方米,室内开间逾9米,加上挑空约6.6米宽约6.2米的豪华客厅配置,豪宅恢弘气派显露无疑,成为大宅之当然。“独墅”内配置大面积露台、花园、阳光半地下室连通花园,闲时栽花剪草、品茶阅读,自然够惬意。室内预留私属电梯空间,首层还附设多功能储备间,加上顶层超大屋面空间,上下全方位使用。
四、观湖园·君墅Ⅳ,建面约349平方米,全屋逾9米大开间设计,首层约9.7米宽特大露台,更显得气派过人,加上约6.6米层高挑空客厅、约14平方米迎宾大堂,自然显出大宅豪气;阳光半地下室连接户外花园,预留私属电梯空间;首层附上多功能储备间,大部分卧室配备景观阳台,内外皆是景致,加上顶层超大屋面空间,全方位使用又是一亭台楼阁。
五、观湖园·君墅Ⅴ,建面约287平方米,临岛而起。多用途半地下室连接储藏间,随业主喜好而打造;首层拥有约6.6米层高挑空客厅、餐厅等,坡地而上直接进入,无缝连接户外私家花园,入门即彰显贵族气质;二、三层房间配置大面积露台,使得业主尊尚生活空间尽显。
六、观湖园·君墅Ⅵ,建面约269平方米。阳光半地下室连接户外私属花园,半地下空间或可打造成茶茗、水酒收藏间或健身房,闲时运动或与家人共享自然气息,写意生活由内至外,生活乐趣倍数延伸。首层约6.6米层高挑空客厅、大面积景观露台、餐厅,贵族生活气息流露同时,还附设多功能储藏间、顶层附屋超大面积空间,多元化随心使用,将是创意生活的打造。
七、观湖园·君墅Ⅶ,建面约244平方米,临岛坡地设计。半地下室连接户外花园,亲地接近自然,生活倍显色彩化。一至三层,每层层高约3.3米,配备大面积露台,阔绰主卧设计,彰显主人尊贵身份,处处体验真正墅式生活。顶层还附设屋面大空间,随业主发挥创意打造,再次延展生活舒适空间。
八、观湖园·君墅Ⅷ,建面约238平方米,临岛而建,沿坡地设计,可体验地势自然。单位内配备大面积景观露台、花园、多功能半地下室以及顶层屋面空间。首层约3.6米层高,宽大舒适空间自然展现;首层客厅、餐厅直接贯通户外花园,与自然生活共享,倍感舒适。
.jpg)
.jpg)
.jpg)
.jpg)
.jpg)
.jpg)

































