导读:
    ■惠州中心加墅,珑湖湾二期首盘吸金2亿
    ■别墅户型:双厅挑高达6.6米,270°环绕花园
    ■洋房户型:同线双向阳台览尽江湖
正文:
■惠州中心加墅,珑湖湾二期首盘吸金2亿
方直•珑湖湾,位于惠城区惠沙堤二路与金山大道交汇处,北临江北CBD中央商务区,西靠麦地、演达路繁华商圈,南依集文化教育、体育、商务、居位为一体的南部新城,东接以高新技术产业为主导的生态型东江新城。其开盘至今,已热销超过12亿元,更多次创造惠州第一,堪称惠州豪宅价值标杆。
方直•珑湖湾项目总占地138372㎡,其中一期占地70982㎡,包括7栋高层和72套别墅;二期占地67390㎡,包括6栋小高层洋房、8栋高层、78套别墅;总建面45万㎡,总容积率2.0,绿化率31%,总户数1700余户,车位2730个,车位比达到1:1.61。
目前,其一期产品已基本售罄,仅剩少量洋房;而二期78套双拼别墅也已于今年国庆开盘,推出首批31套,开盘两小时即销超2亿,成为今年以来开盘成绩最好的盘,并以3万/㎡均价刷新惠州房价记录,充分印证了珑湖湾作为惠州高端豪宅标杆的实力。二期洋房正在认筹。现房地内参www.BANQ.cn将根据其户型图,分析其二期的别墅与洋房户型特点。
■别墅户型:双厅挑高达6.6米,270°环绕花园
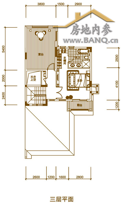
方直•珑湖湾2期的别墅主要包括S、T、U三种户型,面积涵盖200~268㎡。其中,最为值得关注的户型特点包括:1、车位从2个到3个不等,进出方便;2、父母房均设置在1楼,免去父母上下爬楼之苦;3、客厅超大、挑高,奢华尽显;4、主卧配置衣帽间,私密、方便;4、花园阔大,且通过门廊与客厅相连。
S户型包括地下室共分4层。地下室配置3车位、多功能房,更预留私家电梯井道;一层拥5.8米奢阔客厅,温馨附设父母套房,更配207°环绕私家花园;二层豪华全功能设计,起居室、套房、卧室一应俱全;三层设55㎡奢华主卧,还配超阔全赠送双露台,在充分彰显主人气度的同时,还能尽享最大尺度的景观视觉感受。
T户型包括地下室同样为4层。地下室配置3车位、多功能房,但在预留私家电梯井道之外,还预留采光天井,自然纳光入室;一层客厅、餐厅等宽、通透,客厅更阔达9米,挑高6.6米,同样的父母套房、270°环绕花园,安享舒阔与美景;二层经典居家布局,特设阔绰家庭厅,居家生活温馨演绎;三层全主人配置,大主卧、大衣帽间、大主卫,更配大观景阳台。
U户型则可分为U1a、U1b、U1c、U2a、U2b和U2c六种。六种最主要的区别就是车位的位置。六种包括地下室皆为4层。地下室皆配置双车位以及私人会客室;一层客厅、餐厅皆为超阔大、超挑高设计,更中西双厨格局,而父母套房与270°环绕花园也得到完美保留;二层带衣帽间豪华卧室,生活点滴精彩演绎;三层主卧4.4米阔绰空间,更享全赠送南北双露台,闲逸时光亦显气度。
■洋房户型:同线双向阳台览尽江湖
方直•珑湖湾2期的洋房主要包括M、P两种户型。这两种户型的主要特点就是赠送面积较大且方正实用、动静分区,更配置入户花园;而客厅与餐厅也多为相连,在厅出阔大阳台的情况下,采光、通风极佳。
M户型可细分为M1、M2、M3三种户型。三种户型中,赠送面积最大的为M1户型,达到约40.57㎡,而最小的M3户型,也能够达到32.07㎡,其中赠送面积最大的为全赠送阳台,最少的也能达到约12.96㎡,而同样为全赠送的入户花园和内庭院,皆方正实用,发挥一下设计思维,一件书房或婴儿房则会腾空出世。
P户型赠送面积约32.62㎡,赠送面积最大的为景观阳台,达到约12.06㎡,而最少的则为餐厅外阳台,也有2.64㎡;同样方正实用的内庭院和入户花园,不免也是一个发挥想象的机会。当中有一个亮点也是无法避免的,就是客厅、餐厅双出阳台,这样通风、采光就能达到极致。
现房地内参www.BANQ.cn发布方直•珑湖湾2期的户型谍报,供各位参考。欢迎各方踊跃在第一时间提供各类第一手楼书、户型图、意向图资料到房地内参邮箱BANQ@vip.163.com,以谍报而造福网友。(11)1/3
.jpg)
.jpg)
T1-珑湖湾户型

.jpg)
.jpg)
.jpg)
.jpg)
S1-珑湖湾户型


.jpg)


U1A-珑湖湾户型

.jpg)
.jpg)

U1B-珑湖湾户型





U1C-珑湖湾户型






U2A-珑湖湾户型





U2B-珑湖湾户型





U2C-珑湖湾户型





洋房M1户型 

洋房M2户型

洋房M3户型

洋房P1户型
