导读:
■空间拓展盘,上域开创光明居住
■光明N+2,88㎡变身约120㎡
■至上实惠:节省幅度近四成
■日均200批,12月中下旬验证
正文:
■空间拓展盘,上域开创光明居住
自11月20日首次开放销售中心的宏发·上域,吸引两千名客户聚集;11月26日样板房首秀,再次引来千名客户前来参观。作为光明新区今年内唯一待售的商品房项目,宏发·上域的一举一动,都引起了极大的轰动。
从宏发·上域两次公开性活动信息反馈来看,房地内参www.BANQ.cn注意到,众多人们对该项目的产品、户型极其重视。如今样板房开放之时,人们对项目N+2创新空间十分感兴趣,甚至拉着现场工作人员追问:项目户型空间是如何拓展得到的?
正是如此,我们特意针对宏发·上域的户型空间作出详细分析,对项目实现的拓展空间来看,不由得为这种创想式居住而惊喜:这不但实现了最宽裕的居住空间,更让每户人家感受到一种自然生活享受。
■光明N+2,88㎡变身约120㎡
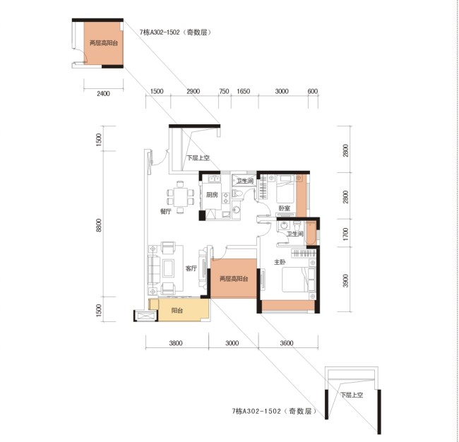
宏发·上域总占地46294平米,总建面202856.14平米,容积率3.04,绿化覆盖率为35%,总户数1432户,车位1350个,规划为10栋住宅、1栋公寓、1所幼儿园,层高主要是15层至19层。
对于户型设计,宏发·上域主力户型涵盖76-89㎡的两房、三房,89㎡的复式,121-168㎡的四房、五房。通过分析发现,宏发·上域充分利用了双层挑高、飘窗、大阳台、露台这些设计技巧,使得每个户型空间均可拓展出2个房间,实现大尺度创想空间。
其中一个建筑面积约88㎡户型,两房两厅,通过对入户花园、双层挑高的合理利用,分别拓展了8.12㎡、约9㎡的两个房间。加上不计入面积的下凸窗、大阳台共约摸5㎡,该户型额外可使用面积约22.12㎡、按80%使用率计算出实际拓展的建筑面积为27.65㎡。
如此,该户型室内空间则变身为115.65㎡的四房两厅。而且项目每个户型单位几乎均可实现这种赠送率,实现每户拓展2个房间甚至更多的生活空间。这是光明新区目前首见的N+2创想空间,也是深圳首个全部实现N+2户型单位!
■至上实惠:节省幅度近四成
首先请大家要注意,下述只是以光明新区二手房价格作为参考,而宏发·上域价格未定。而且,宏发·上域总70年的房产证使用年限,是从2010年11月1日开始计算的,这点是其他楼盘难以享受得到。如此,业主们在购房成本、租金回报等各方面即可得到最多享受。
目前光明新区二手房价格约摸14000元/平米来算,一套115.65㎡的房子,需要账面价格161.91万元。如今,按客户购买的物业建筑面积计算只需123.2万元,账面总价便宜了38.71万元,节省了31.42%的价格空间。也就是说,88㎡房子的实际价格,只需123.2万/115.65㎡=10652.8元/平米,相当于打了76折,这样的优质户型必定在市场引起巨大反响。
该项目每户可拓展2个房间来折算,其中实惠完全可实现。何况上述所节省的38.71万元,只是购买成本,若加上未来的使用成本、持有成本、实际购买成本等综合成本的节省,更为客观。
1、物业管理成本:若以2.8元/㎡计算,节省了27.65*2.8=77.42元/月;2、本体维修基金:以0.25元/㎡计算,节省了27.65*0.25=6.9125元/月;3、购房契税:按3%算,88㎡总价123.2万需要缴纳3.696万,115.65㎡总价161.91万则需4.8573万,省去了1.1613万;4、购买总成本节省了:161.91-123.2=38.71万
合计在70年使用期限内,节省总计是:((77.42+6.9125)*12*70+11613)+387100=82452.3+387100元=469552.3元。也即是说,宏发·上域为客户在70年里节省的购房与使用总成本,实际近达47万元,节省幅度高至38.2%。
■日均200批,12月中下旬验证
摆在大家面前如此吸引的户型结构、购房实惠,诱惑力实在难以抵抗。而且,该项目近邻着红花山公园,10栋主体建筑,错开式地分布开来,这就使得每栋建筑均可最大化地欣赏到园林或红花山公园景观。在这种整个建筑规划基础上,宏发·上域创新性地在每栋建筑规划了入户庭院景观,即每栋建筑楼下均各自设有不同的主题园林景观。
这种人性化的建筑设计、园林景观规划,使得不同栋楼的业主们,均可欣赏到各种春秋的景观,实现了建筑间的景观均好性。这也是人们在参观样板房时,随时即可从阳台、飘窗处欣赏到园林景观的原因。
作为光明新区年内唯一待售的商品房项目,无论是产品户型设计、建筑结构、园林景观来看,宏发·上域都是别墅级资源产品。加上其正好处于光明新区中心区的最高端居住圈、最浓郁商圈内,紧邻着6号地铁中英文学校站,通往深圳北站无缝对接通达深圳全市;在建中的广深港客运专线光明站与之只有10分钟距离,可迅速对接穗莞深港等核心城市。
目前,宏发·上域正在开放N+2创想样板房,即将于12月中下旬入市。在上述节省幅度之大、实在优惠面前,确实很难不让人心动。据悉,截至目前正式开放约15天的宏发·上域,如今上门客户已经超过3000多批,日均约200批。目前现正接受VIP客户升级,开盘可享受5万元大优惠。伴随着众多客户对项目的认同、认可,上域验证时刻即将开启!(09)
宏发·上域效果图
.jpg)
宏发上域户型:7栋A座
