导读:
■中国首个纯私人度假目的地:东部湾海景公寓6月面市
■纳山海景观资源,享私密SPA感受
■区域第一私密山海公寓:“财富500强”企业助阵
正文
■中国首个纯私人度假目的地:东部湾海景公寓6月面市
合正·东部湾作为合正集团集深圳房地产精耕细作15年大成之钜作,南中国海“全度假”模式下的全新顶级海湾度假胜地、中国首个纯私人度假目的地,临近惠深沿海高速新村出口,处于惠州百里旅游长廊的滨海旅游带中,与巽寮旅游度假区隔海相望。
项目占地133万平方米,建面50万平方米,容积率0.89,总户数约4475户;其中一期建面约11万平方米,包括60~150平方米公寓洋房450余套、纯海景别墅80套,均排列错落有致,高低起伏,户户南向海景,能实现自然景观与人文环境的完美融合。
目前,合正·东部湾主推半坡及中央内湖水系两个别墅组团,产品涵盖独栋、双拼及联排等,面积介于220~420㎡之间,其中独栋均价25000元/平方米,双拼20000元/平方米,联排别18000元/平方米。而海景公寓将于今年6月面市。
■纳山海景观资源,享私密SPA感受
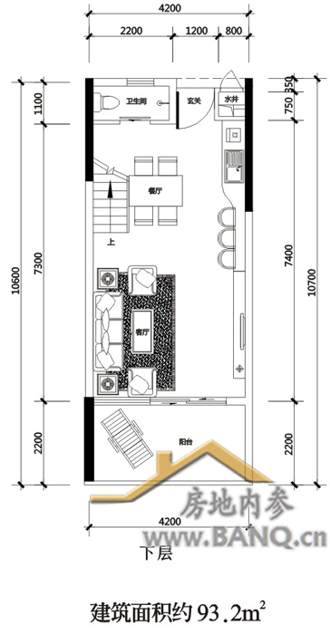
合正·东部湾此次即将推出的海景公寓,位于项目西侧,呈高尔夫球杆“L”型排布,这就保证了每一户均有绝佳的山海景观面;产品涵括84~135平方米复式和40~160平方米平层,以一房户型为主。
复式中,以约134平方米户型为例,配置约14㎡超阔大阳台,挑高客厅,更独创海滨Z型板式建筑结构,南北通透,南瞰海景,北望青山,无尽风光尽收眼底;同时配置私密景观阳台SPA,私密性和景观性极佳!
平层中,以约76平方米户型为例,同样是独创的海滨Z型板式建筑结构,南北通透;更配置前后双阳台,南瞰海景、北望青山;6.3米宽阔开间亲景卧室,更是揽入大美自然;而中小空间,却拥阔大房进私密景观阳台SPA,私密性与人性十足。
■区域第一私密山海公寓:“财富500强”企业助阵
同时,更为重要的是,合正·东部湾即将推出的海景公寓,全为名师精装设计,拎包即可入住;同时更由具有200多年历史,名列全球“财富500强”、“标准普尔500强”企业,为全球最大商业房地产服务公司的世邦魏理仕提供一站式服务,让你度假全程无忧!
而厚浆质感涂料的使用、太阳能节能板整齐排列在楼顶上的嵌入式设计、墙体天蓝色与白色色彩的完美搭配……这些在使整个楼体更显实在和质朴的同时,更增加了项目的整体美感和俯瞰效果。
加之项目湾区内唯一的环山面海类纯别墅住区,拥海至蓝、岸至情、山至绿、桥至绚等多重视线焦点,而超大型实木屋顶滨海双会所的开放、临海商业街的开设、五星级酒店的建设等无疑也将为合正·东部湾即将推出的海景公寓锦上添花,必又将掀起一股疯抢浪潮!
现房地内参www.BANQ.cn发布合正·东部湾海景公寓户型谍报,供各位参考。欢迎各方踊跃在第一时间提供各类第一手楼书、户型图、意向图资料到房地内参邮箱BANQ850@126.com,以谍报而造福网友。(CJZ)
.jpg)
.jpg)
.jpg)
.jpg)
.jpg)
.jpg)
.jpg)
.jpg)
.jpg)
.jpg)
.jpg)
.jpg)