导读:
   ■东莞万科首创公园生活综合体:万科•松湖中心
   ■拥山阅湖,资源独享,松湖中心·璞舍堪称一绝
   ■密斯风格创造私属领地,TOP-King智慧私属尊贵
   ■3大套房诠释礼遇上层本色生活,五层奢华空间私享奢阔人生
正文:
■东莞万科首创公园生活综合体:万科•松湖中心
万科企业股份有限公司成立于1984年,于1988年进军房地产行业,1991年成为深圳证券交易所第二家上市公司。经过近三十年的发展,万科已成为国内最大的住宅开发企业。目前,万科集团业务覆盖珠三角、长三角、环渤海三大城市经济圈以及中西部地区,共计60余个城市。
万科三十年,房地产发展模式创新不断。房产众筹,全民经纪人等系列概念一一被提出,近来则定位“城市配套服务供应商”。东莞万科,秉承万科“让建筑赞美生命”的核心理念,坚持万科产品的核心价值观,致力于为不同消费者提供展现自我、和谐共生的理想生活空间,顺创新之势不遗余力推出的巅峰钜作——万科•松湖中心,首创公园生活综合体。
万科•松湖中心,位于松山湖核心商务景区,松山湖红棉路北侧,占地面积9.7万㎡。其中,项目产品包括一期双拼别墅、二期联排别墅、三期复式和环岛独栋别墅以及3万平米大型商业综合体。而三期复式别墅万科松湖中心·璞舍的出现,则为万科松湖中心增辉添彩。
■拥山阅湖,资源独享,松湖中心·璞舍堪称一绝
松湖中心·璞舍,正处于珠三角经济圈核心,交通十分便捷。周边紧邻莞深、广深、常虎、龙大、南光五条高速,而且R1、R3两条城市轻轨在此交汇,在片区内设有松山湖站、松山湖北站。广州、深圳、东莞市区尽在一小时生活圈内。
不仅如此,松湖中心·璞舍在环境资源层面,在东莞可称作最好的。72平方公里的四季植物园,1425公顷的6大主题公园;国家4A级景区;8平方公里松湖水城,14平方公里原生绿地,南中国区域最大花海——9公里长松湖花海;与东莞八景之首“松湖烟雨”仅一路数百米之隔;122公里园区生态自行车道,串连松山湖7大景观。
同时,松湖中心·璞舍亦在国家级5星生态园核心区——最美的澳洲蓝本小镇,南中国唯一以澳洲为蓝本的景观路网规划内,入则湖光山色,转身即享都市繁华风景,松湖中心·璞舍兼得繁华与宁静享受。
而在生活配套方面,松湖中心·璞舍紧邻已开业一年多的3万㎡万科生活广场,涵盖精品酒店、品味超市、星级影院、特色美食、国际连锁快餐、儿童游乐、美容美发、休闲运动、零售等,全方位满足住户对物质的需求。另外,项目距凯悦酒店500米,出门即1.2万㎡图书馆。并且坐拥广医附院、北部医院,可保障全家人健康。绝对意义上的集商务、休闲、生活、商业、人文配套于一身。闹可往生活广场休闲购物,静可入图书馆陶冶心性,松湖中心·璞舍,可堪称为松山湖一绝。
■密斯风格创造私属领地,TOP-King智慧私属尊贵
在产品打造上,松湖中心·璞舍采用现代简约的密斯风格,大理石干挂石材,玻璃幕墙工艺。材质上使用中空LowE玻璃,空间建筑升级,于顶级居住配置(5大功能套房、超大地下室赠送、360度无对视景观)的基础之上,无限延展灵动空间(8.5米豪华挑高尺度),创造私属领地无限可能。
湖光山色与建筑风格的完美结合,正是万科理念“让建筑赞美生命”的体现。住宅建筑是一种与各种形态的生命息息相关的事业。作为住宅的建设者,万科满怀尊重之心,将住宅建筑看做是一种与各种形态的生命息息相关的事业,为人们建设安全、安心的绿色住宅,并创造和谐、健康丰盛的阳光生活。
同时,万科携手华为专为松湖中心量身打造TOP系“King服务”智慧平台,为业主提供全球首席地产商TOP系尊崇服务。“King服务”以比尔盖茨“未来之屋”为蓝本,由软性服务king管家与硬件配套——智能系统2大部分组成;其中 king管家包括“商务、生活、安全”三大服务类型,为业主的生活提供私属尊贵服务。智能系统包括“智能化服务、智能化安防”2大系统,嫁接一切智慧的可能。
■3大套房诠释礼遇上层本色生活,五层奢华空间私享奢阔人生
踞3公里绝版原生泉溪之上,尽藏风景极致,建筑错落排布,户户私享一线景观,境由心生,12.2米超阔开间、8.5米挑高客厅,4.5米豪华开间,大落地窗自然采光,360°景观视觉,境随心动,441-1098㎡超大前后花园、全明地下室赠送,采用框架式结构、助长主人对空间的自由意志,五层板式奢华空间,坐享“一庭一园一天台”格局。
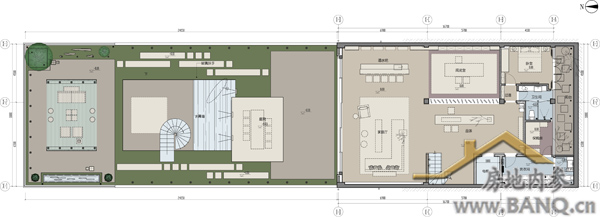
负二层是一个方正的阳光别院,是静可品茗,动可举行狂欢派对的好地方,是主人体会户外休闲生活的最佳场所。其中,下层是景观中庭,隐于内含而不露,别有一番韵味;并可扩展创新地下别具一格空间,滋养主人私人嗜好。
负一层是一个豪华的观景庭院,与下层别院错落有致,形成丰富的空间感受。约200㎡全明地下室,酒水吧,阅览室等空间布局,动静结合,均可依照主人兴趣安排,尽藏休闲时光。三重庭院与双地下室,将围合开放完美组合,更有一番情调。
一层待客接物空间,入户庭院与景观玄关,尽可保持主人私密性。会客厅与餐厅、吧台相连,奢华尺度空间方便主人接人待物;而且采用大落地玻璃窗设计,自然采光、通透铺展,室内视野坦荡。
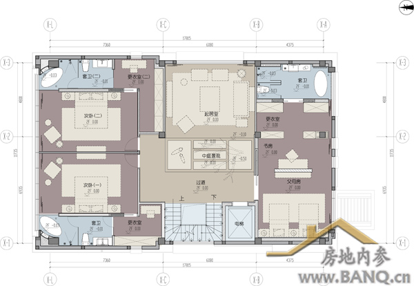
二层即是家庭居家空间,采用3大套房设计,大家风范自然流露;而且3大套房配备独立卫浴、衣帽间,诠释礼遇上层本色生活。中间则是豪华挑高景观中庭连接起居室,家庭成员尽可欢聚一堂畅欢交谈。
三层当然是超级豪华的主人起居层。约11米阔绰开间打造奢华主人起居层,配备奢华卫浴、衣帽间,入场即见排场。11米超大露台,270度超阔视野尽揽室外美景,并有6.5米多功能休息室齐备,观景、休憩皆自如,主人私享奢阔人生,不言而喻。
现房地内参www.BANQ.cn发布万科松湖中心·璞舍’户型谍报,供各位参考。欢迎各方踊跃在第一时间提供各类第一手楼书、户型图、意向图资料到BANQ850@126.com,以谍报造福网友。
负二层

负一层

一层

二层
.jpg)
三层

