GO
土地市场
海上世界双玺三期总平修改公示

作者:室介屋笈 类型:土地市场

来源:www.BANQ.cn(半求·房地内参) 2015-11-03 14:21:46点击6865


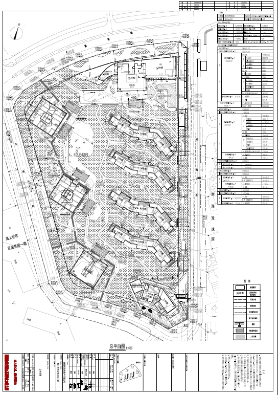
最新消息:由招商地产开发建设的海上世界双玺花园三期总平面图修改已公示,项目位于南山海上世界片区望海路东南侧,宗地号为K306-0002,于2015年1月取得《建设工程规划许可证》,因建设需要申请修改。

经过修改数据公示:三期指标表中A、B、C区住宅总户数减少至496户,取消住宅户型比例分项;2、3栋建筑高度降低,2#层数降低至37层,3#层数降低至35层。建筑高度降低,楼层降低,在一定的程度上,将提升三期的居住舒适度,令居住质量进一步得到保障。

海上世界双玺花园三期总用地面积42788.15㎡,总建筑面积183607.70㎡,容积率2.86,覆盖率17.40%,总户数为496户,停车位1328个。其中,住宅面积114360㎡,商业面积2000㎡(包含,配套设施2040㎡,幼儿园1600㎡。

海上世界双玺,伫立在蛇口自贸区的海上世界片区,是招商地产鼎力铸造的超高层山海大宅,豪居于此可将无边山海景观尽收眼底。双玺不仅拥有优越的地理位置、交通配套、自然资源以及教育配套等资源,而且是目前深圳城区与深圳湾滨海休闲长廊无缝接驳、且没有市政道路隔开的唯一顶级豪宅。

目前,海上世界双玺一期已经卖完,二期还有少量在售,海上世界双玺的周边配套设施也在不断完善,譬如深圳湾滨海休闲带西段最后6公里已于今年9月底开工建设,项目的人居环境将大大提升。


免责声明:
1、本文部分图片来源于网络,素材图片版权归版权所有人所有。如有侵权,烦请联系删除。
2、文中陈述内容和观点均保持中立,不对其准确性、合理性或完整性提供任何保证,且不对因信息的不准确、不合理或遗漏导致的任何损失或损害承担责任。
3、本文所采用的图片、音频、视频等资料版权均归版权所有人所有,因非原创文章及图片等内容无法一一和版权者联系,如有侵犯,请第一时间联系我们,以迅速采取适当措施,避免给双方造成不必要的经济损失。
4、本网页如无意中侵犯了媒体或个人的知识产权,请来电告知,我们将立即删除。