GO
土地市场
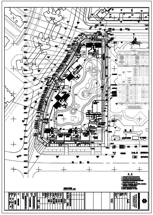
京基·御景中央二期总平公示

作者:室介屋笈 类型:土地市场

来源:www.BANQ.cn(半求·房地内参) 2017-08-18 14:29:59点击7835


近日,京基御景中央花园二期取得深规土建许字LG-2017-0044号《建设工程规划许可证》。,并公布了项目总平面图。

京基御景中央花园二期(G01064-0291宗地)由深圳市黄阁坑股份合作公司麻沙分公司、深圳市红旗股份合作公司、深圳市格坑股份合作公司、深圳市龙口股份合作公司、深圳市龙红格股份合作公司和深圳市龙二股份合作公司开发建设,项目位于龙岗区龙城街道,用地面积23924.17平方米。

京基御景中央分两期(南、北区)建设,北区共9栋高端住宅,建面约12万平方米。项目周边为成熟的高端住宅集群,商业配套齐全。不仅如此,京基御景中央还拥有丰富的教育资源,华中师大龙岗附中、北理莫斯科大学过渡校区和规划的九年制学校多所学校环绕。

轨道交通方面,项目周边3号线、14号线、16号线三线汇集,20分钟可达福田中心区,实现高效出行。项目临近鹰咀山、龙城公园等天然氧吧,生态宜居。人文大宅京基御景中央配套齐全,多重价值叠加,赋予生活全新想象。


免责声明:
1、本文部分图片来源于网络,素材图片版权归版权所有人所有。如有侵权,烦请联系删除。
2、文中陈述内容和观点均保持中立,不对其准确性、合理性或完整性提供任何保证,且不对因信息的不准确、不合理或遗漏导致的任何损失或损害承担责任。
3、本文所采用的图片、音频、视频等资料版权均归版权所有人所有,因非原创文章及图片等内容无法一一和版权者联系,如有侵犯,请第一时间联系我们,以迅速采取适当措施,避免给双方造成不必要的经济损失。
4、本网页如无意中侵犯了媒体或个人的知识产权,请来电告知,我们将立即删除。