2020年3月6日,深圳市龙华区城市更新和土地整备局发布【关于《龙华区观澜街道君子布君新片区城市更新单元规划(草案)》的公示】,君子布君新片区旧改已列入《2015年深圳市城市更新单元计划第三批计划》,更新单元规划(草案)已经2020年龙华区城市更新工作领导小组第一次会议审议,现予以公开展示。
君子布君新片区旧改位于龙华区观澜街道东部,紧邻城市主干路环观南路,近邻清平高速路可直接通往大外环,并直接接驳至龙环大道通往观澜新中心,交通较为便利。


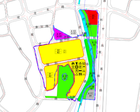
根据公示,该旧改用地面积102981.3㎡,拆除范围用地面积101043.3㎡,其中开发建设用地面积54922.4㎡。规划容积为324970㎡,其中住宅266750㎡(含公共租赁住房23800㎡),商业、办公及旅馆业建筑43240㎡,公共配套设施14980㎡(含幼儿园3900㎡、占地面积3600㎡、不少于12班,公交首末站4600㎡,社区健康服务中心1000㎡,老年人日间照料中心750㎡,文化活动室1000㎡,社区管理用房300㎡,社区警务室100㎡,社区服务中心400㎡,邮政所120㎡,环卫工人作息房10㎡,再生资源回收站60㎡,公共厕所60㎡,小型垃圾转运站200㎡,公共充电站700㎡,社区级公共配套用房1780㎡)。另配建社区体育活动场地占地面积1500㎡,物业服务用房按照《深圳经济特区物业管理条例》予以核定。

根据《2015年深圳市城市更新单元计划第三批计划》,该项目申报主题是深圳市锦泰长基房地产开发有限公司,该企业经营范围包括在合法取得使用权的土地上从事房地产开发经营;投资兴办实业;建筑材料的销售及其他国内贸易;物业服务;经营进出口业务。该公司由多家企业共同持股,除民企外,还包括海南省慈航公益基金会、中国东方资产管理股份有限公司等国有组织。
本次旧改,用地面积较大,交通相对便利,且位于人口密度较大的龙华区观澜街道,因此,旧改中所包含的住宅,商业、办公及旅馆业建筑,公共配套设施等,能够为所在片区居民的总体生活水平及便利程度,带来一定提高,并且商业发展,也比较值得期待。