■百仕达•乐湖:罗湖最大盘收官之作
百仕达花园占地35万、总建筑面积超过100万平米,属深圳大盘开启者之一、深圳城区东部最大盘、也是罗湖最大小区,百仕达•乐湖为百仕达花园的第五期,原命名为百仕达东郡广场,后改为百仕达•乐湖。
 
百仕达•乐湖位于罗湖区东湖公园西侧泰宁路与东乐路交汇处。项目占地面积40786.17平方米,总建筑面积317783.63平方米,共有4栋34层住宅,约940套单位,停车位2357个,以三房、四房为主。
 
■深圳涵盖最广的跨界物业
 
百仕达•乐湖有13.5万平方米住宅、41000平方米商业物业和50000平方米写字楼、酒店综合建筑,其功能将涵盖住宅、酒店、办公、商业、艺术等领域。
 
在国际上,跨界(crossover)是最新的潮流,当一个符号还无法诠释一种生活方式或者再现一种综合消费体验时,就需要几种符号联合起来进行诠释和再现,而这些符号的载体,就是不同的品类,这就是跨界。
 
在此之前,深圳曾经出现过商业、写字楼、住宅、酒店4领域合一的建筑体,比如华润万象城。而百仕达在百仕达花园5期百仕达•乐湖上,则规划了住宅、商业、酒店、写字楼、艺术5个领域,率先开始了更大覆盖的跨界物业的运作……
 
■车户比2.5:1全市第一:超过众多别墅
 
百仕达•乐湖总户数约940套单位,停车位共有2357个,车户比为2.5:1,这个“车户比”不但在罗湖区是排在第一位的,在整个深圳市也绝对属于第一。
 
车位配比高,意味者户均拥有的车位数量相对较多,在私家车越来越多的时期,车位对于保障楼盘的长期潜力还是非常重要的。
 
■建筑质量最好的新盘:2007建设局两次通报表扬
 
深圳市建设局对全市建设项目会进行定期检查,而这个检查结果直接决定着项目的建筑质量。香地咨询·半求工作室&房地产之窗www.BANQ.Cn资料显示,百仕达•乐湖2007年两次被深圳市建设局通报表扬。
 
2007年第二季度建筑结构质量检查暨监理工作质量专项检查对百仕达•乐湖提出通报表扬,建设局评价:由江苏华建建设公司施工的百仕达东郡广场工程,结构外观质量好,梁、板、墙、柱大面平整,线条顺直,钢筋、模板安装质量好,结构垂直度、平整度实测合格率高。江苏华建公司在百仕达花园工地各期施工已近10年,一直保持了很高的施工质量水平。
 
2007下半年商品房建安质量排行榜中,百仕达·乐湖以92分的成绩排在第一名。
 
■全赠送落地凸窗:山湖美景尽收眼底
 
本项目的户型方方正,主卧房完全南北通透,客厅最宽达5米,最大化引入室外景观,使业主从进门就开始享受山湖美景。
 
所有房间的窗子全部为落地凸窗,最宽达90公分,与房间同一水平线,入伙后无需改动可直接使用。落地凸窗有两个好处,首先是景观面的涉取,在本项目的房间透过玻璃窗向外望去,不是山景就是湖景,少有楼与楼之间的对视现象。同时这部分面积是完全赠送的。
 
另外,玻璃窗与地板之间有2厘米的凸台,能够起到保护玻璃不容易被损坏。
 
■百仕达•乐湖7月份发售
 
百仕达•乐湖预计将于7月份发售,项目的样板房将在6月底开放。
 
现香地咨询•半求工作室&房地产之窗www.BANQ.cn发布百仕达•乐湖户型图谍报,供各位参考。欢迎各方踊跃在第一时间提供各类第一手楼书、户型图、意向图资料到BANQ@vip.163.com,以谍报而造福网友。
 
 
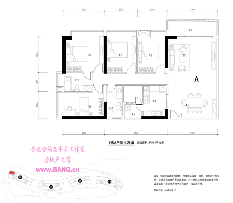
百仕达•乐湖:1栋A户型图

百仕达•乐湖:1栋B户型图

百仕达•乐湖:1栋C户型图

百仕达•乐湖:1栋D户型图

百仕达•乐湖:1栋E户型图

百仕达•乐湖:1栋F户型图

百仕达•乐湖:1栋G户型图

百仕达•乐湖:1栋H户型图

百仕达•乐湖:2栋A户型图

百仕达•乐湖:2栋B户型图

百仕达•乐湖:2栋C户型图

百仕达•乐湖:2栋D户型图

百仕达•乐湖:2栋E户型图

百仕达•乐湖:2栋F户型图

百仕达•乐湖:3栋A户型图

百仕达•乐湖:3栋B户型图

百仕达•乐湖:3栋C户型图

百仕达•乐湖:3栋D户型图

百仕达•乐湖:3栋E户型图

百仕达•乐湖:3栋F户型图

百仕达•乐湖:3栋G户型图

百仕达•乐湖:3栋H户型图

百仕达•乐湖:4栋A户型图

百仕达•乐湖:4栋B户型图

百仕达•乐湖:4栋C户型图

百仕达•乐湖:4栋D户型图

百仕达•乐湖:4栋E户型图

百仕达•乐湖:4栋F户型图

百仕达•乐湖:4栋G户型图

百仕达•乐湖:4栋H户型图

百仕达•乐湖:4栋I户型图

百仕达•乐湖:4栋J户型图
