■莱蒙·水榭山:距CBD最近的纯别墅大盘
莱蒙·水榭山位于宝安区龙华牛咀水库北侧,民乐路以北、外环南路以西,建在水库岸边及水库山脉之上。项目位于玉龙路、白龙路、金龙路、南坪快速形成“井”字状交通网的“网中央”,南坪快速、福龙路、梅龙路,梅观高速、龙大高速、莞深高速等高速体系。
该项目向东驱车10分钟可至龙岗工业区,向南车程10分钟至福田CBD及皇岗口岸,向西车程10分钟至南山华侨城,向北10分钟至观澜高尔夫、东莞。十分钟拥有深圳的全部。
项目总占地143083.76㎡、容积率0.6、计容积率总建面85850㎡(其中:住宅82850㎡、小区级商业设施1000㎡、物业管理用房600㎡、社区服务中心(保健、文化娱乐、便民设施等)1400㎡),绿化率≥45%。
深圳的纯别墅大盘,只有占地60万㎡的招华·曦城、占地30万的万科·天琴湾、占地56万平㎡东部华侨城·天麓、14万平㎡莱蒙·水榭山、占地8万平㎡招商·半山海景别墅,莱蒙·水榭山是深圳境内规模第四的纯别墅大盘,同时,也是距深圳CBD最近的纯别墅大盘。
■深圳境内公共配套比例最高的别墅
莱蒙·水榭山由于全部采用地下车库停车,同时,为小区各户设计了大量的地下空间,粗略估算,其地下库面积大约在70000平㎡上,加上区级商业设施1000㎡、物业管理用房600㎡、社区服务中心1400㎡,合计公共配套面积为71740平㎡与住宅建筑面积的比例为71740÷82850=86.6%。
这是深圳境内公共配套比例最高、并且遥遥领先的别墅,86.6%说明的问题是:除开私家空间,莱蒙·水榭山还配备了足够的公共空间和配套设施,解决自身需求的能力强。
■深圳容积率最低的豪宅片区
1997年开始的填海工程在深圳湾畔、华侨城世界之窗南侧造就了这片占地2.9平㎡里的红树片区,早期规划其容积率只有1.2。但是2007年,调整规划以后,这里的整体容积率达到2.5。华侨城片区整体容积率2.0,香蜜湖片区整体容积率2.5,后海填海区整体容积率超过3。
龙华二线拓展区南段高档居住配套区规划整体容积率仅为1.2,相比之下,莱蒙·水榭山所在的区域是深圳容积率最低的第一居所豪宅区域。
■户型图谍报
水榭山第一期处位于地块南侧,共5栋24套单位,其中4套为样板房。端头面积在300-360平方米之间,中间单位面积在220-230平方米之间。首批已推出24套别墅,
现香地咨询•半求工作室&房地产之窗www.BANQ.cn发布莱蒙·水榭山Townhouse户型图谍报,供各位参考。欢迎各方踊跃在第一时间提供各类第一手楼书、户型图、意向图资料到BANQ@vip.163.com,以谍报而造福网友。
1#楼-01(地下室)
.jpg)
1#楼-01(首层)
.jpg)
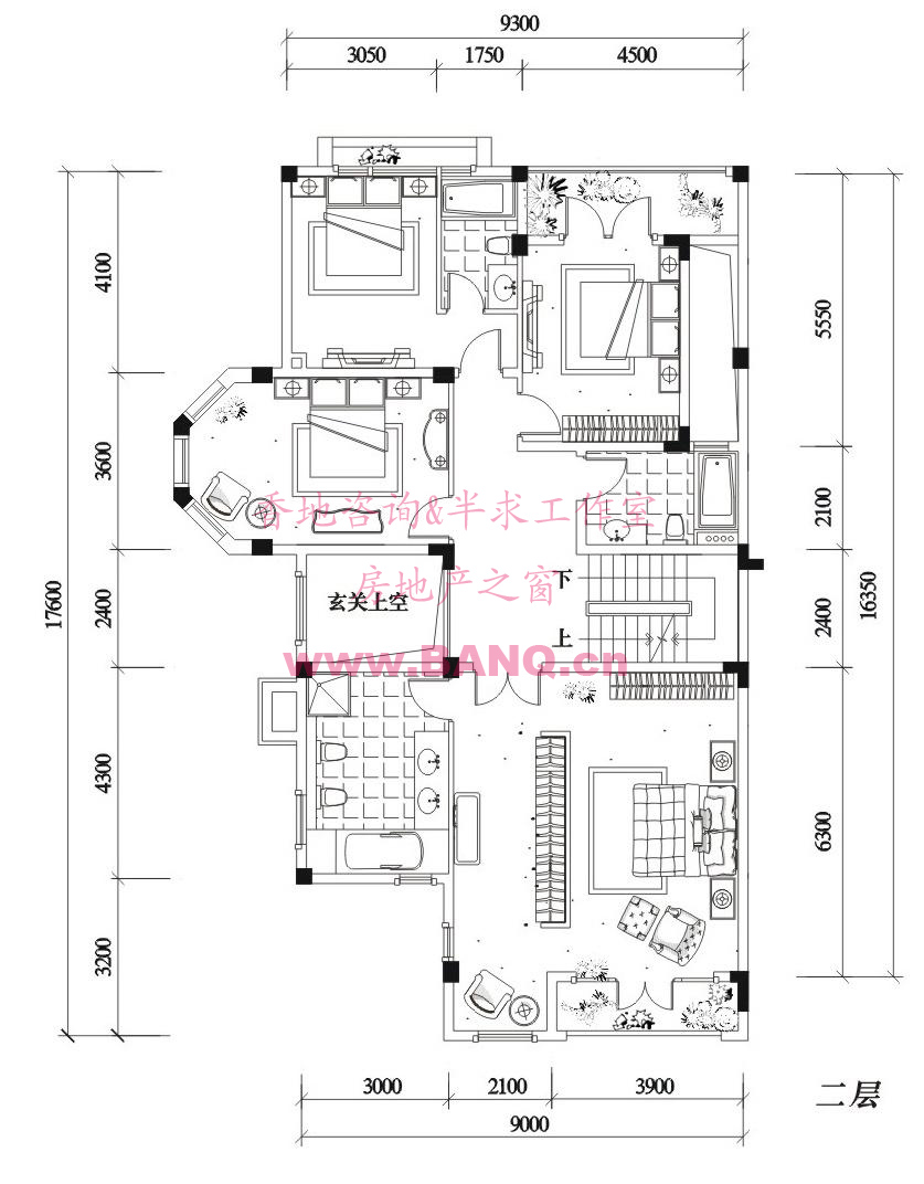
1#楼-01(二层)
.jpg)
1#楼-01(三层)
.jpg)
1#楼-02(地下室)
.jpg)
1#楼-02(首层)
.jpg)
1#楼-02(二层)
.jpg)
1#楼-02(三层)
.jpg)
1#楼-03(地下室)
.jpg)
1#楼-03(首层)
.jpg)
1#楼-03(二层)
.jpg)
1#楼-03(三层)
.jpg)
1#楼-05(地下室)
.jpg)
1#楼-05(首层)
.jpg)
1#楼-05(二层)
.jpg)
1#楼-05(三层)
.jpg)
1#楼-06(地下室)
.jpg)
1#楼-06(首层)
(1).jpg)
1#楼-06(二层)
.jpg)
1#楼-06(三层)
.jpg)
2#楼-01(地下室)
副本.jpg)
2#楼-01(首层)
副本.jpg)
2#楼-01(二层)
副本.jpg)
2#楼-01(三层)
副本.jpg)
2#楼-02(地下室)
副本.jpg)
2#楼-02(首层)
副本.jpg)
2#楼-02(二层)
副本.jpg)
2#楼-02(三层)
副本.jpg)
2#楼-03(地下室)
副本.jpg)
2#楼-03(首层)
副本.jpg)
2#楼-03(二层)
副本(1).jpg)
2#楼-03(三层)
副本.jpg)
2#楼-05(地下室)
副本.jpg)
2#楼-05(首层)
副本.jpg)
2#楼-05(二层)
副本.jpg)
2#楼-05(三层)
副本.jpg)
2#楼-06(地下室)
副本.jpg)
2#楼-06(首层)
副本.jpg)
2#楼-06(二层)
副本.jpg)
2#楼-06(三层)
副本.jpg)
3#楼-01(地下室)
副本(1).jpg)
3#楼-01(首层)
副本(1).jpg)
3#楼-01(二层)
副本(1).jpg)
3#楼-01(三层)
副本.jpg)
3#楼-02(地下室)
副本.jpg)
3#楼-02(首层)
副本.jpg)
3#楼-02(二层)
副本.jpg)
3#楼-02(三层)
副本.jpg)
3#楼-03(地下室)
副本.jpg)
3#楼-03(首层)
副本.jpg)
3#楼-03(二层)
副本.jpg)
3#楼-03(三层)
副本.jpg)
3#楼-05(地下室)
副本.jpg)
3#楼-05(首层)
副本.jpg)
3#楼-05(二层)
副本.jpg)
3#楼-05(三层)
副本.jpg)
4#楼-01(地下室)
副本.jpg)
4#楼-01(首层)
副本.jpg)
4#楼-01(二层)
副本.jpg)
4#楼-01(三层)
副本.jpg)
4#楼-02(地下室)
副本.jpg)
4#楼-02(首层)
副本.jpg)
4#楼-02(二层)
副本.jpg)
4#楼-02(三层)
副本.jpg)
4#楼-03(地下室)
副本.jpg)
4#楼-03(首层)
副本.jpg)
4#楼-03(二层)
副本.jpg)
4#楼-03(三层)
副本.jpg)
4#楼-05(地下室)
副本.jpg)
4#楼-05(首层)
副本.jpg)
4#楼-05(二层)
副本.jpg)
4#楼-05(三层)
副本.jpg)
4#楼-06(地下室)
副本.jpg)
4#楼-06(首层)
副本.jpg)
4#楼-06(二层)
副本.jpg)
4#楼-06(三层)
副本.jpg)
5#楼-01(地下室)
副本.jpg)
5#楼-01(首层)
副本.jpg)
5#楼-01(二层)
副本.jpg)
5#楼-01(三层)
副本.jpg)
5#楼-02(地下室)
副本.jpg)
5#楼-02(首层)
副本.jpg)
5#楼-02(二层)
5#楼-02(三层)
副本.jpg)
5#楼-03(地下室)
副本.jpg)
5#楼-03(首层)
副本.jpg)
5#楼-03(二层)
副本.jpg)
5#楼-03(三层)
副本.jpg)
5#楼-05(地下室)
副本.jpg)
5#楼-05(首层)
副本.jpg)
5#楼-05(二层)
副本.jpg)
5#楼-05(三层)
副本.jpg)
5#楼-06(地下室)
副本.jpg)
5#楼-06(首层)
副本.jpg)
5#楼-06(二层)
副本.jpg)
5#楼-06(三层)
 副本.jpg)