■城市有机体
华侨城像一个“有机体”,慢慢自然生长,波托菲诺是华侨城的有机组成部分,其价值也是随着华侨城慢慢成长的。华侨城地貌地形丰富,包括山地、湖泊、林地、海洋、湿地等,植被繁多。位于波托菲诺的燕栖湖和天鹅湖,是自然赐给华侨城的两个湖泊,天鹅湖总面积约为4万㎡,蓄水容积20万m³;燕栖湖总面积约为7.5万㎡,蓄水容积18万m³,湖岸长达4公里。
华侨城有机体的“海绵”效应秉承华侨城“优质生活的创想家”的品牌基因,构建城市一流的优质生活系统,这种创造力与强大的生活集成能力具备了“高端生活方式中心”的优越条件。地产方面也是如此,集住宅、别墅、公寓、商业、写字楼、酒店等建筑形态于一身,使华侨城地产成为国内涵盖更宽泛范畴、建筑类别最齐全、产品线最丰富的房地产企业之一。
今天的华侨城是深圳“最美的地方”:城区的绿化覆盖率近70%,人均公共绿地面积42平方米,达到发达国家水平;环境噪音平均只有53.4分贝,夏日平均气温比市区低2-4摄氏度,城区空气质量平均值达到国家一级标准,2004年,华侨城更是被国际公园协会授予“国际花园社区”金奖。
20年后再看华侨城,它已成为一个开放性的、处于良性动态发展中的有机系统,打造出了自己的“城市意向”。一座有吸引力的城区空间自然会在城区的标识、空间节点、环境景观、道路系统等方面提供给人们清晰、愉悦的体验。而华侨城恰恰很关注这些方面,通过系统的建立去引导人的行为和感受,同时树立了自己的品牌和城市意向,成为深圳的一张名片。
而身处华侨城腹地的波托菲诺,总是最先、最快地接受这种优质生活的感染,提供最为纯粹地道的生活。“场所制造了氛围,而氛围改变了时间观念。”一位人文学者这样评价波托菲诺。
■波托菲诺——生生不息的中国优质生活样板
波托菲诺作为华侨城的有机组成部分,其价值也是随着华侨城“有机体”慢慢成长的,其活力与生命力来自华侨城对区域开发的精细化运营;波托菲诺依托整个华侨城产业集群的持续运营,成为价值链上的重要一环和优先受益者。对于波托菲诺业主而言,除了享受更丰富的配套服务,更意味着其居住物业成为持续经营的“明星楼盘”而实现价值不断攀升;
华侨城已超越传统意义的房地产开发,成为更高层面的区域运营商,使许多城市烙上“华侨城记忆”。华侨城与城市共生的力量,除了带给自身之外,更给所在的城市带来生生不息的生命力,华侨城的每一次跨越,都会被外界所瞩目。
今天,如果要用一个地方来定格华侨城优质生活时,波托菲诺无疑是一个毫无争议的地方,波托菲诺自2001年至今仍然散发着不可拒抗的魅力,历经人文沉淀,以高端住宅区的标准升华了华侨城的品质生活。更重要的是,随着华侨城的全国拓展步伐,这种独特的生活方式必将“润物细无声”地引领全民审美倾向,带到不同的城市。
标志性住区的最终形成,一定是来自外界的公认。华侨城和波托菲诺通过内外部生活资源的整合,营造生生不息的优质生活方式,无论是在国内既有的社区,还是城市运营模式都是独特的现象。“它自身会繁殖,并接受外界的新鲜空气,最终对外界产生影响力。”华侨城与城市共生的力量,除了带给自身之外,更给所在的城市带来生生不息的生命力,华侨城的每一次跨越,多会被外界所瞩目。
华侨城生活方式在今天早已被扩大为一座城市的共识。它所彰显的物质精神脱离空间属性,由一个旅游区和居住区最终当仁不让地成为了深圳的生活方式原创中心和生活方式运动中心——无论从文化的塑造、商业力量的形成、还是场所精神的培育、社会精英的引领……从这个角度而言,它已经超越物质的形态而演变为一种积极的城市力量,一个厘清城市文脉的文化巨擎。
作为中国优质生活的样板、华侨城生活方式的高端体验场,未来整个波托菲诺社区将由天鹅堡、纯水岸与香山里组团一起构筑顶级人居版图。
■复式大邸——经典之上,波托菲诺再塑经典
延续波托菲诺社区生生不息的产品创新路线,即将推出的纯水岸复式大邸是继纯水岸四期售罄之后近年来市面上少见的顶级单位,也是之前华侨城未对外展示的纯粹复式产品,共130户,是真正的“空中别墅”,享有全球顶级配置。
经典传承,又不断超越,正是波托菲诺得以历久弥新的魅力所在。在7万平米燕栖湖畔,纯水岸复式大邸以一气呵成的气度,筑造了全新经典。波托菲诺复式大邸,他处绝无仅有。近50平米的大露台、6.3米的双高客厅、观景电梯、两梯一户、户户朝南的卧室……如此非凡产品,不仅之前未见,其后,亦难再见可比肩者。
2号楼A户型标准层,建筑面积:约360㎡,5房3厅4卫+工人房


2号楼B户型二层,建筑面积:约270㎡,3房3厅4卫+工人房


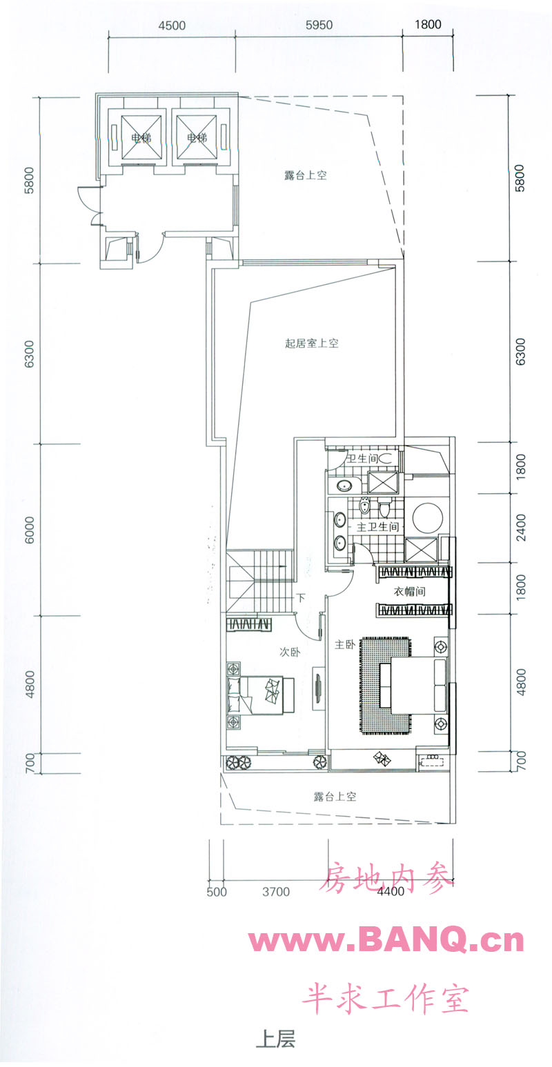
2号楼B户型标准层,建筑面积:约270㎡,3房3厅4卫+工人房
.jpg)
.jpg)
2号楼C户型二层,建筑面积:约270㎡,3房3厅4卫+工人房


2号楼C户型标准层,建筑面积:约270㎡,3房3厅4卫+工人房


2号楼D户型标准层,建筑面积:约270㎡,3房3厅4卫+工人房


3号楼A户型标准层,建筑面积:约270㎡,3房3厅4卫+工人房


3号楼B户型二层,建筑面积:约270㎡,3房3厅4卫+工人房


3号楼B户型标准层,建筑面积:约270㎡,3房3厅4卫+工人房


3号楼C户型二层,建筑面积:约270㎡,3房3厅4卫+工人房


3号楼C户型标准层,建筑面积:约270㎡,3房3厅4卫+工人房


3号楼D户型标准层,建筑面积:约270㎡,3房3厅4卫+工人房


3号楼E户型标准层,建筑面积:约270㎡,3房3厅4卫+工人房


3号楼F户型二层,建筑面积:约360㎡,5房3厅4卫+工人房


3号楼F户型标准层,建筑面积:约360㎡,5房3厅4卫+工人房

