■曦城北区修改总平,招华开始新型默销
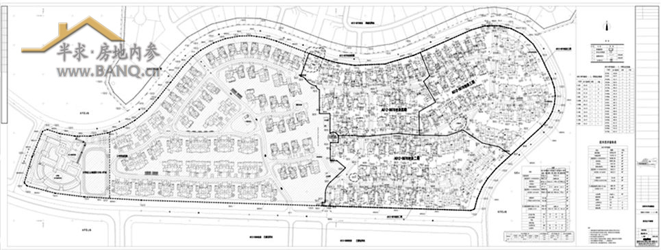
招商华侨城投资公司曦城北区,是在A012-0078宗地上建设的,这里是整个南北别墅区中的至高地,北区用地面积192960.99平方米,原本分两期报建,二期于2009年12月核发深规土建许字BA-2009-0130号《建设工程规划许可证》。
之后因施工条件受限以及销售需要,现在招华将原报建二期分为二、三、四期,分别核发《建设工程规划许可证》,其中南区为大一期,而2、3、4均属大北区地块,2期已经销售完毕。规划部门目前已经决定根据一期已建成配套用房面积情况,相应调整后面各期配套用房面积,保持该分项指标平衡;根据现场地形情况调整垃圾站平面形状及位置。以上内容涉及到总图的修改(详见附图云线圈注部分)。
北区总平图的修改调整,意味着曦城的后续供应即将陆续推向市场,而房地内参www.BANQ.cn得到消息,招华公司已经决定“曦城将不再设营销节点、不设专门开盘仪式、以静制动”的“双无方向”,这意味着未来的销售都将是默销。
■双无需要实力:因为足够高度,所以如此低调
全新的移民城市深圳,目前裙带关系成型,意味着亲情成本提高了,而亲情成本的提高将决定人们在对待居住问题上,将越来越不愿意做“滚石”了,选择可以毕其一生、一家的长住地,即使搬家也在同一片区换房,这在很大程度上将成为未来深圳改善型置业者的首要方向。
曦城是深圳最大的纯墅区,供应多、换房空间大,同时小区有国际学校、有山顶会所、城堡式商业中心,即将开办招华会(封闭的内部会员)、山顶会(开放的外部会员),这是一处在山地密林中的独立居住王国。具有了这种条件的曦城,才有实力在深圳首个叫起“不再设营销节点、不设专门开盘仪式”。
随着零裙带关系时代的消失,深圳大幅度净地也在消失,作为深圳最后的以平方公里计的居住片区,曦城片区目前已经迎来了可以守静致虚的最好时期了。裙带亲情是一种幸福,以前过于年轻的深圳热衷于享受零裙带关系、及其带来的区域跳跃式购房快感的时代可能发生一去不复返了。
.jpg)