导读:
■200万㎡的同城化社区
■项目概况
■项目户型特点
■卓越·东部蔚蓝海岸户型谍报
正文:
■200万㎡的同城化社区
卓越·东部蔚蓝海岸,位居大亚湾西部综合居住服务区,紧邻石化大道,距离深圳坑梓咫尺之遥。目前石化大道与坑梓锦绣东路连接工程已启动,预计2011年将零距离接驳深圳,沿海高速开通,地铁三号线延长线及厦深铁路的建设,深惠同城公交现已开通,“卓越·东蔚”已与深圳融合一城,同城生活趋势愈加明显。
卓越·东部蔚蓝海岸200万㎡的社区蓝图,以城市生态园为规划理念,深度思考最人性的、最生态的、最文明的居住形式,力求博纳国际先进的健康住宅建造技术和健康居住社区,最大限度创造最宜人居的里程碑。
在低层低密度、适当的邻里距离、安静的周边环境、私密领域与公共空间的相互依存、无污染的室内外环境、个性化的富于异国情调的住宅外观、节能环保的建筑材料应用等全面创新,打造大亚湾人居新标准。
■项目概况
房地内参www.BANQ.cn资料显示,卓越·东部蔚蓝海岸占地77万㎡,总建筑面积逾200万㎡,以类别墅及高层为主,是卓越史上最大盘。项目一期占地约158300㎡,建筑面积约178219㎡,计容建筑面积:149599.77 ㎡,包括别墅和高层、5345㎡的私享会所,并规划20000㎡的独立商业。总户数为989套,其中别墅有144套。
项目所处的大亚湾片,拥有良好规划体系,在中海壳牌石化产业、比亚迪等一系列公司的带动下,经济将再度腾飞,成为惠阳城市经济新中心。大亚湾依据近海优势、空气质量等优势已经逐渐成为深圳人养老、休闲度假的圣地。而随着珠江口莞、深、惠的都市融合,大深圳的概念以及一小时生活圈将逐渐成为深圳人的生活方式。
卓越·东部蔚蓝海岸项目以恢宏的体量,整体展现教育、配套、商业的整体高品质形象,带给人居住的高贵、舒适感觉。为满足小区业主“一站式”生活、娱乐、教育等需要,项目总体开发初步预计配备学校两间、幼儿园二个、住户会所1个,成为区域内罕见的居家型设计导向的社区。
■项目户型特点
在卓越·东部蔚蓝海岸发布的户型图中,房地内参www.BANQ.cn根据研究,发现其户型有几大明显特点:一是父母房居于核心,地位突出,既体现设计者爱心,也为置业者的孝顺之心提供平台;二是每层的功能清晰,着重突出了主人房与工人房的划分;三是书房的实用功能强;四是整套的露台、阳台面积大。
在D户型中,突出了父母房的地位,两个书房,主卧室的独立卫生间和衣帽间,并且以天井
贯通了全楼。父母房在二楼,可以是父母不受上下楼梯之苦,体现设计者的爱心。一层的两个不同方向的露台都可以作花园,而且两个书房也完全具备了实用的功能。
在F户型中,客厅与餐厅是分开的。餐厅连着厨房,客厅与花园相接,每层配备卫生间,二楼有两个卧室,用来做父母房和书房都是可以的。三层只设置了主人房,突出了主人房的地位,并且3层拥有15平方米左右的露台空间。
在G 户型中,地下室设置了工人房,又有近20平方米的入门花园,第二层同样设计的是2个卧室,第三层主人房,值得注意的是主人房是书房、卫生间和衣帽室是一个整体的,并且享有着独立的阳台空间。
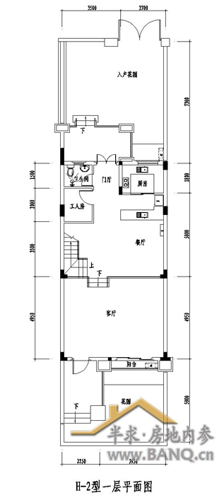
在H户型中,虽然没有地下室,但40多个平方的入户花园依然能够带来顶级享受,一层设置有工人房,后花园,二层设置了两个卧室和一个书房,并且还有一个储藏室,充分利用了空间。三层的卧室享有了近20个平方的露台。
在J 户型中。地下室设置了工人房,一层的餐厅和客厅之间隔着过道,实现了分离。二层的父母房同样在核心位置,配备了独立的阳台,并且还设置了两个卧室。三层的主人房与书房是连接的,并且有一个显著的特色,就是卫生间、衣帽间与卧室中间隔着过道,这也就是说整个三层都是主人的私享领域,还有两个不同方向的露台空间。
■卓越·东部蔚蓝海岸户型谍报
卓越·东部蔚蓝海岸第一组团别墅将于2010年10月正式开始接受诚意客户上门咨询,目前,项目深圳咨询处已经开放,地址位于福田中心区卓越时代广场一期大堂内,现场临时营销中心预计于11月底对外开放,而高层共有845套,作为第二组团明年发售。
现房地内参www.BANQ.cn发布卓越·东部蔚蓝海岸户型谍报,供各位参考。欢迎各方踊跃在第一时间提供各类第一手楼书、户型图、意向图资料到BANQ@vip.163.com,以谍报而造福网友。对于东部蔚蓝海岸,我们用“自城一家”|的意思就是:体量够大可抵城、一家是深家、是第一的家!(06)


.jpg)


































